
Living Room
Living Room
Kitchen
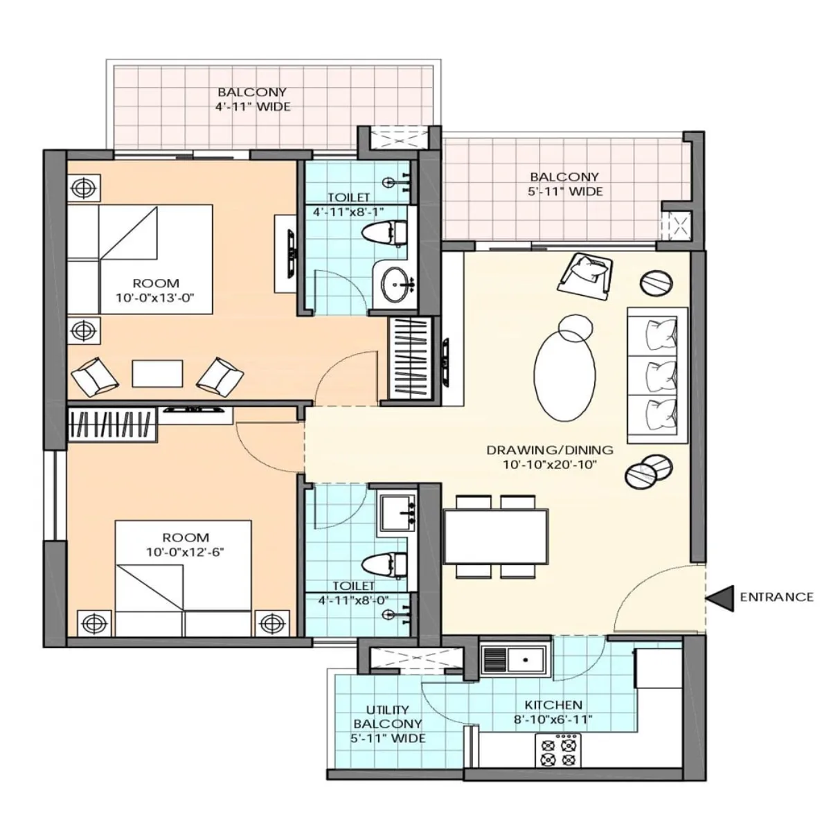
Master BedroomTower 6/2 BHK High-rise apartment (33rd floor) · 1,261 sqft · 33th floor
Fully furnished 2BHK on the 33rd floor of M3M Heights, Sector 65. East-facing with open skyline views, strong cross-ventilation, and piped gas. The owner lived here and furnished it with premium pieces. M3M 65th Avenue (retail, restaurants, cafes) is right next door, Cyber City is a 40-minute drive, and quick commerce delivers in 11-15 minutes. One heads-up: lift wait times can be longer at peak hours given the 33rd floor.
Tower 6 · 2 BHK · 1,261 sqft · 33th floor
Fully furnished 2BHK on the 33rd floor of M3M Heights, Sector 65. East-facing with open skyline views, strong cross-ventilation, and piped gas. The owner lived here and furnished it with premium pieces. M3M 65th Avenue (retail, restaurants, cafes) is right next door, Cyber City is a 40-minute drive, and quick commerce delivers in 11-15 minutes. One heads-up: lift wait times can be longer at peak hours given the 33rd floor.
HomeScore
Inspected in person93/100
Outstanding light and noise scores from the 33rd floor. Strong ventilation and power backup. Lift wait is the main trade-off.
Works well
Stunning 33rd-floor views. Open skyline with no obstruction, Aravalli hills visible on clear days.
East-facing with beautiful morning sunlight. Living room stays bright all day, scored 5/5 on lux.
Strong cross-ventilation. Balcony doors create a powerful breeze, scored 5/5.
Things to know
Lift wait can be long at peak hours. Scored 2/5, expected for a 33rd-floor unit with moderate lift density.
Entry gate area sees shallow flooding during heavy monsoon rain (once a year, seasonal).
Shower pressure is good but not exceptional. Scored 4/5 versus kitchen's 5/5.
Available immediate

Monthly
Move-in cost
Deposit fully refundable. No hidden fees.